楼盘动态 更多
-
暂无数据
楼盘问答 更多
暂无数据
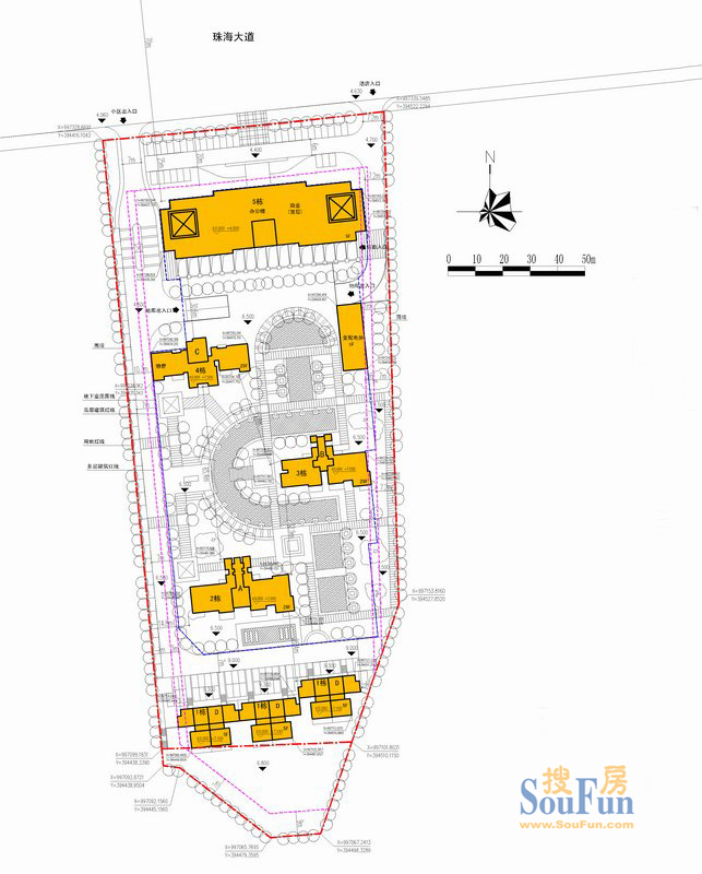
楼盘详情
- 珠海隆盛房地产开发公司
- 普通住宅:70年|联排:70年
- 24196.45平方米
- 48061.48平方米
- 40%
- 1.98
- 共384个停车场">共384个停车场
- 240户
- 暂无资料
- 暂无
- 简装
绿湖山庄位于将军山畔,绿湖公园及南坪水库旁,面向珠海大道,临近华发商都,华发新天地,华润万家,虹桥商城,红树湾北区商业街,红树湾南区商业街等等。教育资源丰富,广昌小学、南屏中学、容闳中小学,医疗配套完善,香洲第二人民医院,妇幼医院等。
知名华发物业管理,让你安心出门,顺心回家。
交通出行方便,10分钟车程覆盖城市三大发展新区,5分钟可到达高速出入口,10分钟就可接驳港珠澳大桥,快速到达粤港澳大湾区的各大城市,拥有1小时粤港澳经济生活圈。
知名华发物业管理,让你安心出门,顺心回家。
交通出行方便,10分钟车程覆盖城市三大发展新区,5分钟可到达高速出入口,10分钟就可接驳港珠澳大桥,快速到达粤港澳大湾区的各大城市,拥有1小时粤港澳经济生活圈。
楼盘点评
更多
暂无数据
消息通知(我们将为您保密个人信息)
绿湖山庄 在售
30000 元/㎡(均价)
微信扫码拨号
0756-8639007



